Immobiliensuche:

630m² mit 8 Wohnungen, Vermietet oder zur Eigennutzung

in Lütjensee
zum Kauf
1.249.000 €
Käuferprovision: 2,95% v. Kaufpreis inkl. gesetzl. MwSt.
Ansprechpartner
Timo Kriech
Timo Kriech
04102 / 824 30 50
Anfrageformular
 
 
   Ihre Daten werden verschlüsselt übertragen und nicht an Dritte weitergegeben.
Objektnr.: 372(1/372)
Badezimmer: 7
  ·  
Zimmer: 19
  ·  
Wohnfl.: 630 m²
Beschreibung

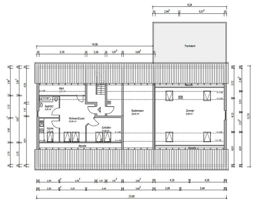
Angeboten wird hier ein Mehrfamilienhaus mit 8 Wohneinheiten. Insgesamt umfasst das Objekt ca. 630 m² Wohnfläche. Das Haus kann entweder voll vermietet mit einer Sollmiete von 85.000€ oder komplett frei erworben werden. Der Quadratmeterpreis liegt bei 1.950 € oder einem Faktor von 14,7.
Die Ursprungssubstanz des Gebäudes ist älter, der gesamte Umbau inkl. Dach, Fenster und Elektrik wurde in den 90er Jahren gemacht, daher entspricht der Zustand des Objektes diesem Alter.
2 Wohnungen sind derzeit vermietet. Es besteht kein aktueller Sanierungsbedarf zur Vermietung der Wohnungen. Es gibt einen Mietergarten und eine große Terrasse. 130 m² sind als Gewerbe ausgewiesen, können aber als Wohnfläche genutzt werden. Auf dem Grundstück befindet sich ein Sparkassen-SB-Container mit einem Mietertrag von 7.800€ p.A.

Ausstattung

– Massive Bauweise
– Laufend modernisiert
– Altbau von 1848
– Fünf 3-Zimmer Wohnungen (75m²)
– Zwei 2-Zimmer Wohnungen (50m²)
– Gaststätte mit Möglichkeit zur Gewerbe- oder Wohnnutzung (130m²)
– Mietergarten
– 2 Treppenhäuser
– Große Terrasse
– Dach, Fenster, Türen (ca. 1994)

Lage

Zentrale Lage in Lütjensee in direkter Nachbarschaft zum Marktplatz. Lütjensee ist ein Ort mit Naherholungsqualität unmittelbar angrenzend an den östlichen Speckgürtel Hamburgs. Sehr gute Verkehrsanbindung und gute Verbindung mit dem öffentlichen Nahverkehr.

Sonstiges

Machen Sie sich selber einen Eindruck von dieser Immobilie und fragen Sie uns nach einem Termin für eine Begehung.
Bitte sehen Sie von Alleingängen ohne Anmeldung ab, da die Eigentümer viel Wert auf ihre Privatsphäre legen.

Besichtigungstermine: Nach Vereinbarung.

Bitte geben Sie bei Interesse Ihre vollständigen Kontaktdaten (Name, Anschrift, Telefon, E-Mail) an, damit wir Ihre Anfrage schnellstmöglich bearbeiten und beantworten können. Vielen Dank!

Haftungsausschuss:
Trotz sorgfältiger Bearbeitung von Daten, Bildern und Informationen übernehmen wir keine Haftung für die Richtigkeit der Angaben, ebenso wenig für die Lieferfähigkeit des Angebotes bei Verkauf.

Objektangaben
Kaufpreis
1.249.000 €
Wohnfläche
630 m²
Zimmer
19
Grundstücksfläche
1.331 m²
Anzahl Etagen
3
Anzahl Zimmer
19
Anzahl Schlafzimmer
11
Anzahl Badezimmer
7
Bad mit
Dusche,Wanne
Küche
Einbauküche
Stellplätze
8
Garagenanzahl
4
  • Provisionspflichtig
  • Vermietet
  • Abstellraum
Energieausweis
Baujahr
1994
Befeuerungsart
Gas
Karte

Sie sehen gerade einen Platzhalterinhalt von Google Maps. Um auf den eigentlichen Inhalt zuzugreifen, klicken Sie auf die Schaltfläche unten. Bitte beachten Sie, dass dabei Daten an Drittanbieter weitergegeben werden.

Mehr Informationen

Ähnliche Immobilien

Hausansicht
433.000 €
23879 
Mölln , Kr Hzgt Lauenb
Viel Platz – EFH mit zusätzlichem Baugrundstück
Badezimmer: 2
  ·  
Zimmer: 6
  ·  
Wohnfl.: 130 m²
Hausansicht
284.000 €
23879 
Mölln , Kr Hzgt Lauenb
Viel Platz für die ganze Familie
Badezimmer: 2
  ·  
Zimmer: 6
  ·  
Wohnfl.: 130 m²
Hauseingang
675.000 €
22959 
Linau
Exklusives Einfamilienhaus mit Einliegerwohnung
Badezimmer: 3
  ·  
Zimmer: 9
  ·  
Wohnfl.: 257 m²
Hausansicht mit Garten
799.000 €
22926 
Ahrensburg
Charmantes Haus in Villenlage von Ahrensburg
Badezimmer: 1
  ·  
Zimmer: 4
  ·  
Wohnfl.: 122 m²
Hausansicht
340.000 €
23863 
Bargfeld-Stegen
Charmant und gemütlich – Ehemaliges Reetdachhaus neu interpretiert
Badezimmer: 2
  ·  
Zimmer: 4
  ·  
Wohnfl.: 125 m²
Hausansicht vom Garten
650.000 €
23743 
Grömitz
Ihr Rückzugsort an der Ostsee – Ferienhaus mit strandnahem Grundstück
Badezimmer: 2
  ·  
Zimmer: 4
  ·  
Wohnfl.: 135 m²
Hausansicht
499.000 €
23858 
Barnitz , Trave
Gemütlich Wohnen in Feldrandlage.
Badezimmer: 2
  ·  
Zimmer: 5
  ·  
Stellplätze: 3
Hauseingang
450.000 €
22926 
Ahrensburg
Stadthaus mit Südgarten und Ausbaureserve in begehrter Lage
Badezimmer: 1
  ·  
Zimmer: 4
  ·  
Wohnfl.: 120 m²
Hausansicht_Haus vorne
649.000 €
22946 
Trittau
Zwei Doppelhaushälften (90m² + 130m²) mit Baugrundstück (ca. 400m²).
Badezimmer: 2
  ·  
Zimmer: 7
  ·  
Stellplätze: 2
Gartenansicht
725.000 €
21035 
Hamburg
200m² EFH mit neuem Walmdach und moderner Heizung
Badezimmer: 2
  ·  
Zimmer: 6
  ·  
Wohnfl.: 240 m²
Hausansicht
499.000 €
23898 
Wentorf b Sandesneben
Natürlich Wohnen - Modernes Zuhause für die junge Familie!
Badezimmer: 2
  ·  
Zimmer: 4
  ·  
Wohnfl.: 120 m²
Gartenansicht
295.000 €
22952 
Lütjensee
Gartenliebhaber aufgepasst! DHH mit großem Garten für 2 Personen
Badezimmer: 2
  ·  
Zimmer: 3
  ·  
Wohnfl.: 108 m²