Immobiliensuche:

Im Dornröschenschlaf – sanierungsbedürftiges EFH

in Elmenhorst , Kr Stormarn
zum Kauf
290.000 €
Käuferprovision: 3,25% v. Kaufpreis inkl. gesetzl. MwSt.
Ansprechpartner
Timo Kriech
Timo Kriech
04102 / 824 30 50
Anfrageformular
 
 
   Ihre Daten werden verschlüsselt übertragen und nicht an Dritte weitergegeben.
Objektnr.: 364(1/364)
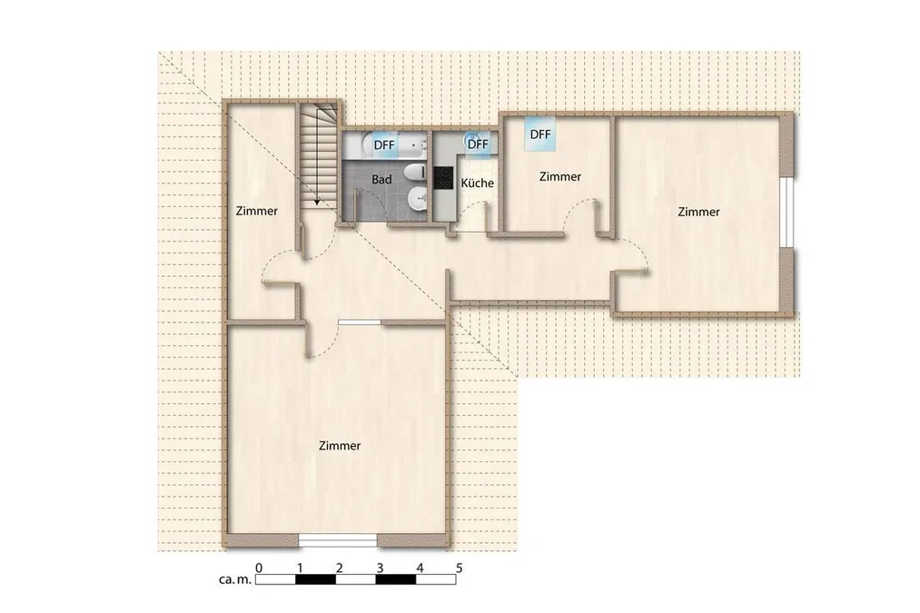
Badezimmer: 2
  ·  
Zimmer: 6
  ·  
Wohnfl.: 202 m²
Beschreibung

Hereinspaziert in ein Haus, das nur darauf wartet, dass neues Leben einzieht. Dieses im Jahre 1974 in massiver Bauweise errichtete Haus befindet sich auf einem großzügigen, eingewachsenen Grundstück mit ca. 889 m² Fläche und hat Einiges zu bieten – weist aber auch einen erheblichen Sanierungsbedarf auf. Das Haus erstreckt sich auf insgesamt ca. 202 m² Wfl., ist winkelartig gebaut und hat ca. 6,5 Zimmer. Ein besonderes Highlight ist das ausgebaute Dachgeschoss mit 4 Zimmern, Küche und Vollbad, das sich bei Bedarf als separate Wohneinheit nutzen lässt – z. B. für Jugendliche, Gäste oder zur Vermietung. Im Erdgeschoss erwarten Sie 3 Zimmer, sowie ein Vollbad, ein Gäste-WC und eine Küche. Das Highlight auf dieser Etage ist das helle und großzügige Wohnzimmer (ca. 43m²) mit offenem Kamin und Zugang zur überdachten Terrasse und dem Garten. Für Ihre PKW stehen zwei Garagen zur Verfügung. Diese Immobilie bietet viel Raum für Ideen – sei es als großzügiges Familienheim oder als Objekt mit Einliegerwohnung. Mit etwas handwerklichem Geschick und einem durchdachten Sanierungskonzept lässt sich hier ein echtes Wohnjuwel schaffen.

Ausstattung

– Massive Bauweise
– Sanierungsbedürftig
– Großzügige Raumaufteilung
– DG als separate Wohneinheit nutzbar
– Kamin
– Rollläden im EG
– Abstellraum/ HWR
– Garten in Süd/Ost-Ausrichtung
– Überdachte Terrasse in Süd/Ost-Ausrichtung
– Eingewachsenes Grundstück

Lage

– Freundliche, familiäre Nachbarschaft
– Ortsteil Fischbek
– Gehört zum Amt Bargteheide-Land
– Elmenhorst ist eine Gemeinde mit 2.808 Einwohnern
– Gehört zum wirtschaftsstärksten Landkreis Stormarn
– 40 Autominuten zur Hamburger Innenstadt
– 40 Autominuten nach Lübeck/ Ostsee
– Öftl. Verkehrsmittel nach Bargteheide/ Bad Oldesloe
– Nächste Bushaltestelle in ca. 200m
– KiTa vor Ort/ Grundschule in den umliegenden Gemeinden
– Weiterführende Schulen in Bargteheide/ Bad Oldesloe
– Sportvereine, Bäcker, Spielplätze, Ärzte, Discounter

Sonstiges

Machen Sie sich selber einen Eindruck von dieser Immobilie und fragen Sie uns nach einem Termin für eine Begehung.
Bitte sehen Sie von Alleingängen ohne Anmeldung ab, da die Eigentümer viel Wert auf ihre Privatsphäre legen.

Besichtigungstermine: Nach Vereinbarung.

Bitte geben Sie bei Interesse Ihre vollständigen Kontaktdaten (Name, Anschrift, Telefon, E-Mail) an, damit wir Ihre Anfrage schnellstmöglich bearbeiten und beantworten können. Vielen Dank!

Haftungsausschuss:
Trotz sorgfältiger Bearbeitung von Daten, Bildern und Informationen übernehmen wir keine Haftung für die Richtigkeit der Angaben, ebenso wenig für die Lieferfähigkeit des Angebotes bei Verkauf.

Objektangaben
Kaufpreis
290.000 €
Wohnfläche
202 m²
Zimmer
6
Grundstücksfläche
889 m²
Anzahl Etagen
2
Anzahl Zimmer
6
Anzahl Schlafzimmer
6
Anzahl Badezimmer
2
Anzahl Terrassen
1
Bad mit
Wanne,Fenster
Küche
Einbauküche
Boden
Fliesen,Teppich
Garagenanzahl
2
  • Provisionspflichtig
  • Gäste-WC
  • Abstellraum
Energieausweis
Baujahr
1974
Befeuerungsart
Öl
Heizungsart
Zentralheizung
Karte
Google Maps

Mit dem Laden der Karte akzeptieren Sie die Datenschutzerklärung von Google.
Mehr erfahren

Karte laden

Ähnliche Immobilien

Hausansicht
495.000 €
23795 
Klein Gladebrügge
Geräumig und gut durchdacht – viele Zimmer unter einem Dach!
Badezimmer: 2
  ·  
Zimmer: 7
  ·  
Stellplätze: 2
Gartenansicht
295.000 €
22952 
Lütjensee
Gartenliebhaber aufgepasst! DHH mit großem Garten für 2 Personen
Badezimmer: 2
  ·  
Zimmer: 3
  ·  
Wohnfl.: 108 m²
Gartenansicht
349.000 €
23843 
Bad Oldesloe
Zeitloses Design – Praktisches Reihenendhaus
Badezimmer: 1
  ·  
Zimmer: 4
  ·  
Wohnfl.: 97 m²
Gartenansicht
290.000 €
23869 
Elmenhorst , Kr Stormarn
Im Dornröschenschlaf – sanierungsbedürftiges EFH
Badezimmer: 2
  ·  
Zimmer: 6
  ·  
Wohnfl.: 202 m²
Hausansicht
365.000 €
21502 
Geesthacht
Gepflegte Doppelhaushälfte mit romantischem Charme
Badezimmer: 1
  ·  
Zimmer: 5
  ·  
Wohnfl.: 110 m²
Hausansicht
375.000 €
22956 
Grönwohld , Kr Stormarn
Eine Familie unter zwei Dächern
Badezimmer: 2
  ·  
Zimmer: 10
  ·  
Stellplätze: 2
Hausansicht
299.000 €
23879 
Mölln , Kr Hzgt Lauenb
Viel Platz für die ganze Familie
Badezimmer: 2
  ·  
Zimmer: 6
  ·  
Wohnfl.: 130 m²
Dachterrasse
599.000 €
22119 
Hamburg
Hoch hinaus – neuwertiges Townhouse mit Dachterrasse
Badezimmer: 1
  ·  
Zimmer: 5
  ·  
Wohnfl.: 125 m²
Hausansicht
465.000 €
23879 
Mölln , Kr Hzgt Lauenb
Viel Platz – EFH mit zusätzlichem Baugrundstück
Badezimmer: 2
  ·  
Zimmer: 6
  ·  
Wohnfl.: 130 m²
Hausansicht
499.000 €
23898 
Wentorf b Sandesneben
Das Traumhaus vom Zimmermann
Badezimmer: 2
  ·  
Zimmer: 4
  ·  
Wohnfl.: 120 m²
Schlafzimmer_OG
475.000 €
23898 
Wentorf b Sandesneben
Liebhaber gesucht! Reetdach-Bauernhaus mit großer Yogahalle
Badezimmer: 2
  ·  
Zimmer: 6
  ·  
Wohnfl.: 160 m²